轉臂式穩態離心試驗機是通過傳動系統,讓固定在旋轉架上的發動機轉動而產生離心力,在過載情況下測試其某些性能參數的變化情況,主要用于航天航空等領域的科學研究。
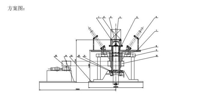
以下是環儀儀器HYZB系列轉臂式穩態離心試驗機的方案圖:
.jpg)
該方案的特點:
1.實驗裝置的重心降低,動架上的載荷減小,穩定性增加。
2.對測量件的要求也大大降低了 ,而且可以實現多個角度范圍的測量。
3.可承受較大的扭矩,使整個裝置的穩定性和可靠性提高。
4.整個系統結構更簡潔,制造工藝更好。
5.工作穩定,使測量精度高,效率高、壽命長、靠、傳動比穩定。
6.扭矩低。
產品參數:
.jpg)








