潮濕環境還可能導致產品的電氣特性發生變化。當一些絕緣材料的表面凝露或吸附了一定數量的潮氣后,其表面電阻可能會降低,甚至產生漏電現象。因此,UDT需要進行濕熱循環結露試驗,來判斷產品是否符合要求,該試驗需要使用新能源汽車驅動部件溫濕度試驗機,下面,我們來看看該試驗是如何做的。
新能源汽車驅動部件濕熱循環結露試驗說明:
試驗設備:環儀儀器 新能源汽車驅動部件溫濕度試驗機
試驗依據:GB/T 42284.4-2022 道路車輛 電動汽車驅動系統用電氣及電子設備的環境條件和試驗 第4部分:氣候負荷
試驗目的:模擬系統/部件用于高濕條件,失效模式為因潮濕引起的電氣故障,例如,印刷電路板因潮濕產生的泄漏電流。另一種失效模式為殼內潮氣流動的“呼吸”效應,即系統/部件殼內空氣溫度下降時,外部高濕氣體被吸入。
工作模式:系統/部件功能不被激活(如休眠模式)。
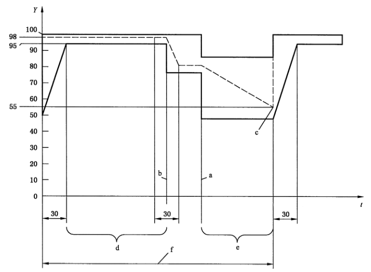
試驗條件如下圖所示:
標引序號說明:
t--時間,min;
Y--相對濕度,%;
T--溫度,℃;
a--開始降溫;
b--升溫結束;
c--溫濕度建議值;
d--冷凝;
e--干燥;
f--一個循環。
新能源汽車驅動部件的濕熱循環結露試驗說明,如有試驗疑問,可以咨詢環儀儀器相關技術人員。











